2013 Itasca Suncruiser 37F
Used Class A in Spring Lake, Michigan, 49456
$70,000.00
Unit Specs
- Stock #C60181307
- Year2013
- ManufacturerWinnebago Industries
- Make Itasca
- ModelSuncruiser
- Floorplan37F
- Type Class A
- ConditionUsed
- Mileage10 miles
- Length37' 0"
- VIN181307
- Price $70,000.00
- Need to know your payment? Use our RV Loan Calculator!
- Engine ManufacturerFord V10
- Fuel TypeGas
- Interior ColorCustom Light Blue
- Exterior ColorTan and Gray
- Sleeps2
- Air Conditioners1
- Slideouts3
Looking to buy a 2013 Itasca Suncruiser Class A RV?
2013 Itasca Suncruiser 37F 37' 4" Class A Motorhome. Ford V10 362HP Gasoline Engine. 3 Slide Outs, Awning, Sleeps 2, A/C Unit.
Gas Class A | Brand-New Engine (2025) | Bath & 1/2 | Full-Wall Slide | Free & Clear
This 2013 Itasca Suncruiser 37F is an exceptional opportunity to own a fully updated, turn-key Class A motorhome with a brand-new Ford Triton V10 engine installed in 2025?with only 10 miles on the engine. The coach itself has 52,000 miles, and the engine replacement and full safety overhaul were completed professionally at a cost of $40,000, with all documentation available. This replacement was done after discovering a faulty engine previously sold by a dealership?everything has now been corrected properly and thoroughly.
Built on the Ford chassis and powered by the 6.8L Triton? V10 (362 HP), this gas motorhome delivers strong, reliable performance. It features automatic hydraulic leveling, new hydraulics, new brakes, and a complete mechanical overhaul, making it ready for worry-free travel.
Inside, the coach feels warm and upscale with solid oak cabinetry throughout, new laminate flooring, updated lighting, freshly papered walls, and a thoughtfully customized living space. The original couch has been replaced with a rocking reclining loveseat, and the dinette has been upgraded to a pull-out table with chairs. A desk and office chair replace the original sofa/chair setup, making this an excellent choice for work on the road.
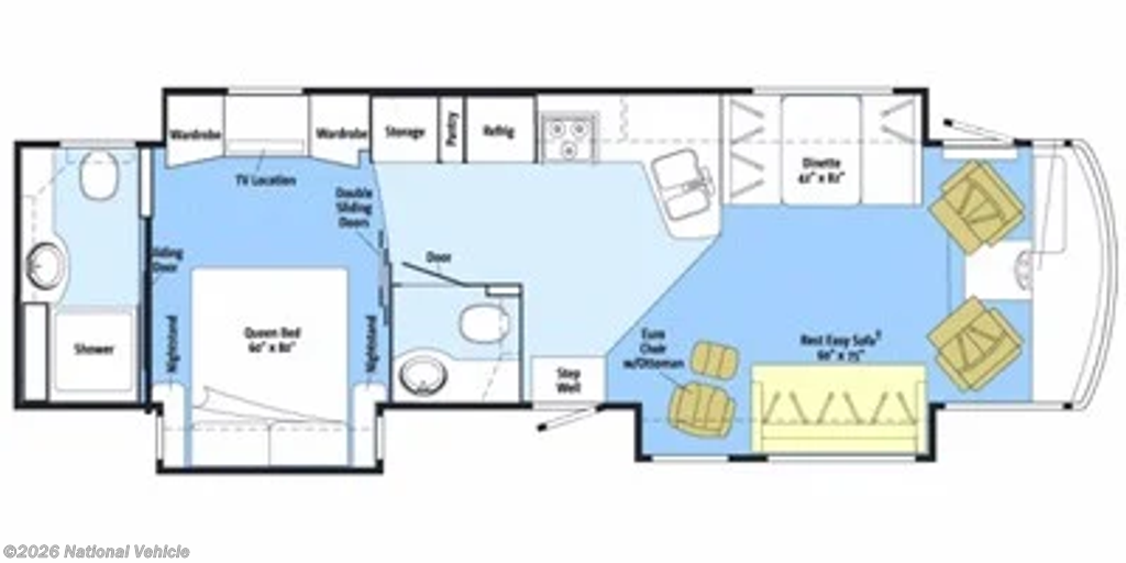
The spacious floorplan includes three slide-outs, including a full-wall slide, all equipped with toppers. The rear bedroom features a king bed with comfort controls, while the bath-and-a-half layout offers a large rear bathroom for true residential comfort.
The kitchen is fully equipped with Corian countertops, stovetop, convection microwave oven, and refrigerator/freezer. Climate control is handled by two A/C units and a furnace, keeping the coach comfortable year-round.
Entertainment and tech upgrades include TVs in the living room, bedroom, and outside, backup and side cameras, and an upgraded JBL touchscreen stereo with inside and outside speakers, a 3-zone audio system, and built-in surround sound. Captain?s chairs swivel to face the living area, creating an open, social space when parked.
Outside, you?ll find a power retractable awning, receiver hitch, and an Onan 5.5kW generator, serviced last fall and ready to go. Tires are three years old, and the main slide has new slide rails.
This coach is non-smoking, free and clear, and includes towels, linens, kitchen amenities, and many additional accessories?just bring groceries and clothes and hit the road.
Automatic hydraulic leveling
Onan
This 2013 Itasca Suncruiser is located in Spring Lake, Michigan. Please call 1-800-320-9557 and mention listing id: 181307.
Gas Class A | Brand-New Engine (2025) | Bath & 1/2 | Full-Wall Slide | Free & Clear
This 2013 Itasca Suncruiser 37F is an exceptional opportunity to own a fully updated, turn-key Class A motorhome with a brand-new Ford Triton V10 engine installed in 2025?with only 10 miles on the engine. The coach itself has 52,000 miles, and the engine replacement and full safety overhaul were completed professionally at a cost of $40,000, with all documentation available. This replacement was done after discovering a faulty engine previously sold by a dealership?everything has now been corrected properly and thoroughly.
Built on the Ford chassis and powered by the 6.8L Triton? V10 (362 HP), this gas motorhome delivers strong, reliable performance. It features automatic hydraulic leveling, new hydraulics, new brakes, and a complete mechanical overhaul, making it ready for worry-free travel.
Inside, the coach feels warm and upscale with solid oak cabinetry throughout, new laminate flooring, updated lighting, freshly papered walls, and a thoughtfully customized living space. The original couch has been replaced with a rocking reclining loveseat, and the dinette has been upgraded to a pull-out table with chairs. A desk and office chair replace the original sofa/chair setup, making this an excellent choice for work on the road.
The spacious floorplan includes three slide-outs, including a full-wall slide, all equipped with toppers. The rear bedroom features a king bed with comfort controls, while the bath-and-a-half layout offers a large rear bathroom for true residential comfort.
The kitchen is fully equipped with Corian countertops, stovetop, convection microwave oven, and refrigerator/freezer. Climate control is handled by two A/C units and a furnace, keeping the coach comfortable year-round.
Entertainment and tech upgrades include TVs in the living room, bedroom, and outside, backup and side cameras, and an upgraded JBL touchscreen stereo with inside and outside speakers, a 3-zone audio system, and built-in surround sound. Captain?s chairs swivel to face the living area, creating an open, social space when parked.
Outside, you?ll find a power retractable awning, receiver hitch, and an Onan 5.5kW generator, serviced last fall and ready to go. Tires are three years old, and the main slide has new slide rails.
This coach is non-smoking, free and clear, and includes towels, linens, kitchen amenities, and many additional accessories?just bring groceries and clothes and hit the road.
Automatic hydraulic leveling
Onan
This 2013 Itasca Suncruiser is located in Spring Lake, Michigan. Please call 1-800-320-9557 and mention listing id: 181307.
2013 Itasca Suncruiser 37F Features
Unit Specs
- Stock #C60181307
- Year2013
- ManufacturerWinnebago Industries
- Make Itasca
- ModelSuncruiser
- Floorplan37F
- Type Class A
- ConditionUsed
- Mileage10 miles
- Length37' 0"
- VIN181307
- Price $70,000.00
- Need to know your payment? Use our RV Loan Calculator!
- Engine ManufacturerFord V10
- Fuel TypeGas
- Interior ColorCustom Light Blue
- Exterior ColorTan and Gray
- Sleeps2
- Air Conditioners1
- Slideouts3
Looking to buy a 2013 Itasca Suncruiser Class A RV?
Unit Location
- City Spring Lake
- State Michigan
- Zip 49456
Email Seller
Request More Info on this 2013 Itasca Suncruiser 37F Offered for sale by National Vehicle
Related Searches:
Similar Units From National Vehicle
Used 2015 Itasca Sunstar 30T
$55,000.00
Used 2022 Jayco Jay Flight SLX 242BHS
$21,500.00
Used 2015 Itasca Ellipse 42QD
$149,900.00
Used 2022 Keystone Fuzion Impact 415
$52,999.00
Used 2019 Coachmen Chaparral Lite 285RLS
$25,999.00
Used 2020 Grand Design Reflection 260RD
$19,500.00
Recent stories from our Blog
Related Rental Searches:
Similar Units for Rent
2013 Itasca Suncruiser 37F Gallery
Click on images to see them enlarged in a slideshow format