Storyteller Overland GXV Epic RVs for Sale Near You Gallery
Click on images to see them enlarged in a slideshow format
- Your Search
- Back to Specs Guide
- Type: Class C
- GXV Epic
- 2025
- Make: Storyteller Overland
- GXV Epic
- 2025
-
-
- Make
- 27North
- Airstream
- Carado
- Chinook RV
- Coach House
- Coachmen
- Entegra Coach
- Fleetwood
- Grand Design
- Grech RV
- Holiday Rambler
- Hymer
- Jayco
- Midwest
- OGV Luxury Coach
- Outside Van
- Pleasure-Way
- ProLite
- Remote Vans
- Roadtrek
- Sportsmobile
- Storyteller Overland
- Swift
- Thor Motor Coach
- Tiffin
- Vanworks
- Westfalia
- Winnebago
-
- Make
- Airstream
- The Vansmith
-
- Make
- Entegra Coach
- Fleetwood
-
- Make
- Forest River
-
- Make
- 27North
- Rossmonster
-
- Make
- Kropf
-
- Make
- NuCamp
-
- Make
- Airstream
- Aliner
- Alliance RV
- ATC
- Awaken RV
- Bigfoot
- Black Series
- Bontrager Outdoors
- Bowlus
- Brinkley RV
- Casita
- Coachmen
- Cortes Campers
- CrossRoads
- Cruiser RV
- Dutchmen
- East to West
- Ember RV
- Encore RV
- Escape Trailer
- Escapod
- Forest River
- Genesis Supreme
- Grand Design
- Gulf Stream
- Heartland
- Highland Ridge
- inTech
- Jayco
- Keystone
- K-Z
- Lance
- Modern Buggy Trailers
- Northwood
- NuCamp
- Oliver
- Outdoors RV
- Palomino
- Prime Time
- ProLite
- Rustic Trail
- Scamp
- Shasta
- Starcraft
- Sunset Park RV
- Swift
- Travel Lite
- Venture RV
- Wayfinder
- Winnebago
-
-
- Model
- Class B
- Overland Camper
-
- Model
- Truck Camper
-
- Model
- Popup
- Travel Trailer
- Truck Camper
-
- Model
- Class A
-
- Model
- Toy Hauler
- Travel Trailer
-
- Model
- Travel Trailer
-
- Model
- Fifth Wheel
- Toy Hauler
-
- Model
- Travel Trailer
- Truck Camper
-
- Model
- Popup
- Toy Hauler
- Travel Trailer
-
- Model
- Travel Trailer
-
- Model
- Travel Trailer
-
- Model
- Travel Trailer
-
- Model
- Travel Trailer
-
- Model
- Fifth Wheel
- Toy Hauler
-
- Model
- Class C
-
- Model
- Travel Trailer
-
- Model
- Toy Hauler
- Travel Trailer
-
- Model
- Class A
- Class B
- Class C
- Diesel Pusher
-
- Model
- Fifth Wheel
- Travel Trailer
-
- Model
- Travel Trailer
-
- Model
- Class A
- Class B
- Class C
- Diesel Pusher
-
- Model
- Class A
-
- Model
- Class B
-
- Model
- Truck Camper
-
- Model
- Travel Trailer
-
- Model
- Popup
-
- Model
- Park Model
-
- Model
- Travel Trailer
- Truck Camper
-
- Model
- Class C
-
- Model
- Fifth Wheel
- Toy Hauler
-
- Model
- Class B
-
- Model
- Fifth Wheel
- Toy Hauler
-
- Model
- Class A
-
- Model
- Truck Camper
-
- Model
- Truck Camper
-
- Model
- Class B
-
- Model
- Travel Trailer
-
- Model
- Popup
-
- Model
- Class B
-
- Model
- Class B+
-
- Model
- Class B
-
- Model
- Fifth Wheel
- Travel Trailer
-
- Model
- Class B
- Travel Trailer
-
- Model
- Destination Trailer
-
- Model
- Class B
-
- Model
- Class B
-
- Model
- Overland Camper
-
- Model
- Travel Trailer
-
- Model
- Travel Trailer
-
- Model
- Fifth Wheel
- Travel Trailer
-
- Model
- Truck Camper
-
- Model
- Truck Camper
-
- Model
- Class B
-
- Model
- Fifth Wheel
- Travel Trailer
-
- Model
- Travel Trailer
- Truck Camper
-
- Model
- Class A
- Class B
- Travel Trailer
-
- Model
- Popup
-
- Model
- Conversion Van
-
- Model
- Expandable Trailer
-
- Model
- Travel Trailer
- Truck Camper
-
- Model
- Class B
-
- Model
- Fifth Wheel
- Travel Trailer
-
- Model
- Travel Trailer
-
- Model
- Class B
-
- Model
- Class A
- Class B
- Class C
- Travel Trailer
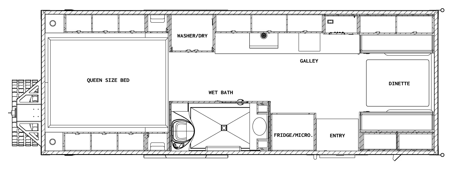
Specs for 2025 Storyteller Overland - GXV Epic
Floorplan: Base (Class C)
Storyteller Overland GXV Epic RVs for Sale Near You
Help me find my perfect Storyteller Overland GXV Epic RV
2025 Storyteller Overland GXV Epic RVs for Sale Near You
More Information about 2025 Storyteller Overland GXV Epic Base
How many 2025 Storyteller Overland GXV Epic Base units are for sale on RVUSA.com?
Click here to search for all available Storyteller Overland GXV Epic units on RVUSA.com.
What is the MSRP for a 2025 Storyteller Overland GXV Epic Base?
The MSRP for a 2025 Storyteller Overland GXV Epic Base is $799,784.00. Find a Storyteller Overland GXV Epic for sale on RVUSA!
What is the length of a 2025 Storyteller Overland GXV Epic Base?
The length of a 2025 Storyteller Overland GXV Epic Base is 30 ft 2 in. Find a Storyteller Overland GXV Epic for sale on RVUSA!